Résumé
Description
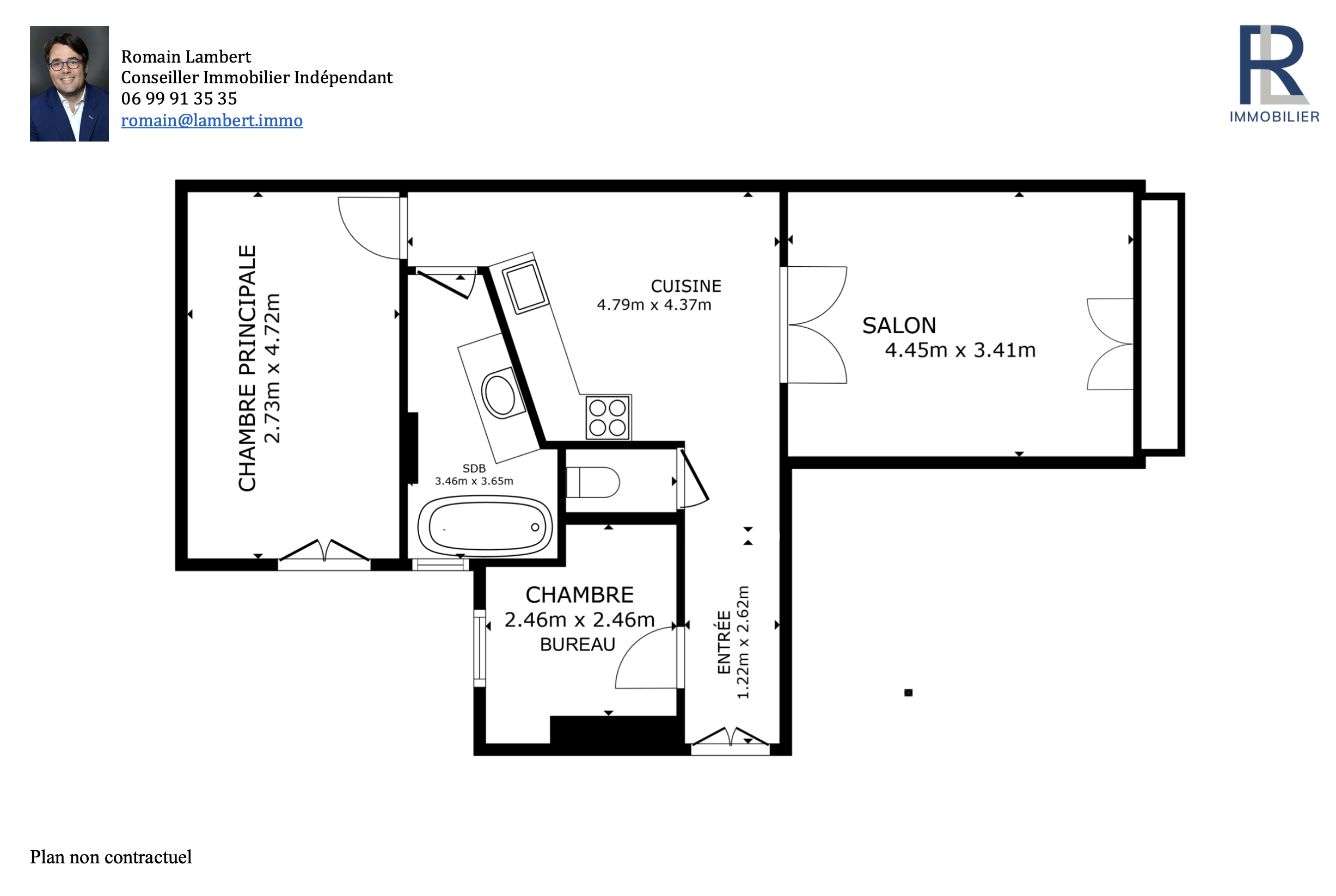
En Exclusivité, à Boulogne Nord, Roland Garros, je vous propose un bel appartement au 5ème étage avec ascenseur dans un immeuble des années 30.
Il est composé d’une entrée, un salon avec balcon, une cuisine dinatoire, une chambre avec cheminée, une petite chambre bureau, une salle de bain, un toilette. Une cave complète ce bien. Un local à vélo dans l’immeuble.
Cet appartement est lumineux, calme à proximité des commerces et des transports.
Prix de vente : 539 000 €
Contact : Romain Lambert 06 99 91 35 35
Les charges mensuelles provisionnées sont de 209 € /mois. Les diagnostics DPE 211 /D GES 33/D. 180 lots dans la copropriété, Pas de procédure en cours. Les informations sur les risques auxquels ce bien est exposé sont disponibles sur le site georisques : www.georisques.gouv.fr
Romain Lambert – EI – 06 99 91 35 35 disponible pour échanger avec vous sur tous vos projets immobiliers. Noté 5/5 étoiles sur les avis Google. Entrepreneur Individuel Enregistre au Registre Spécial des Agents Commerciaux (RSAC) du Tribunal de Nanterre sous le numéro 848 662 995

















